A 1 minute du centre, charmante maison 4 ch à parachever
€ 265 000
Option
4
1
222 m²
327 m²
Luc FERRIÈREinfo@immo-far.be
! COUP DE COEUR ASSURE !
Idéalement située à 1 minute du centre de Vielsalm, à proximité de toutes commodités urbaines, Immo-Far vous présente une charmante maison datée de 1814 en phase de parachèvement sur une belle parcelle de 3 ares 27 centiares.
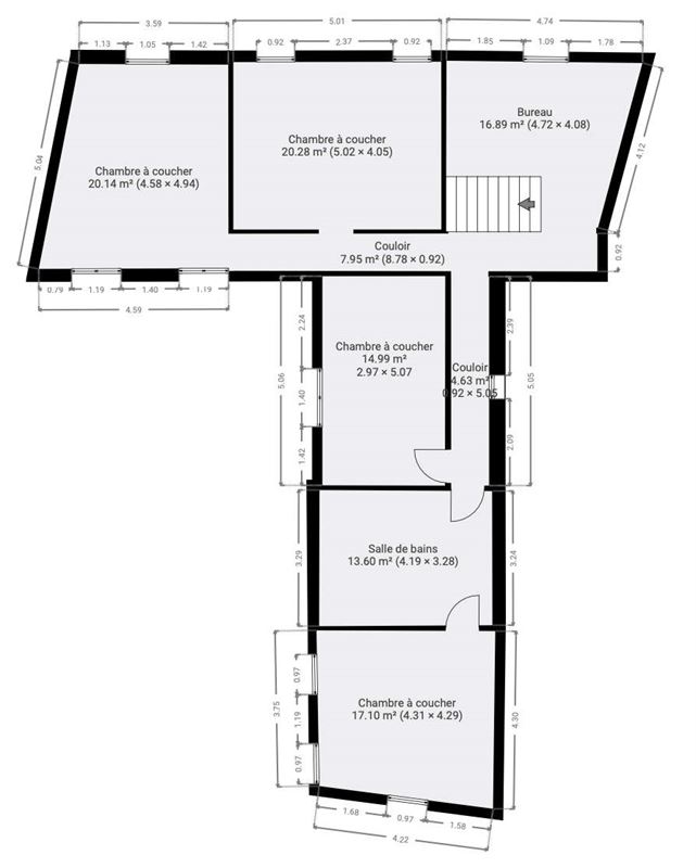
Cette bâtisse comptabilisant 272 m² présente la possibilité de la création d'un deuxième logement ou d'une profession libérale grâce à une surface indépendante de 54 m² composée d'une pièce polyvalente, d'un WC et d'une arrière cuisine, actuellement affectée en pièce de vie.
La suite à parachever est composée d'une vaste et lumineuse pièce de séjour de 50 m² ouverte sur le jardin, de 4 chambres dont 2 finalisées, d'une pièce d'eau prête à l'emploi, d'un espace bureau/salle de jeux, un grenier de rangement.
Située à 500 mètres de la piscine communale, cette maison conviendra parfaitement pour une famille nombreuse.
A l'extérieur, une belle parcelle de jardin ainsi qu'un grand espace de parking 6 voitures.
D'un point de vue technique, ce bien est équipé d'un chauffage central gaz, d'une toiture récente, de châssis double vitrage et d'un nouvelle isolation complète.
Une visite s'impose, ne tardez pas.
Infos et visites : 0486/09 15 89 (7j/7j)
Informations générales
AdresseRue Général Jacques 53, 6690 Vielsalm
Nombre de chambres4
Nombre de salles de bain1
Nombre de toilettes2
Nombre de places de parking externes6
Surface habitable222 m²
Surface du terrain327 m²
Largeur de façade5 m
DisponibilitéÀ l'acte
Performance énergétique
Label PEB
Valeur PEB465 kWh/m²/an
Certificat d'électricitéDemandé(e)
Référence PEB20210711008666
Financier
Prix€ 265 000
Revenu cadastral€ 714
Taxe de propriété€ 310
Coûts totaux€ 2.973,82
Total€ 267.973,82
Confort
ChauffageC.C. au gaz
CuisineSemi-équipée
VitrageDouble vitrage
ChâssisPVC
Construction
Construction3 façades
Type de constructionTraditionnel
Année de construction1814
ÉtatÀ rafraîchir
Matériau de toitureArdoises naturelles
Informations urbanistiques
Droit de préemptionDemandé(e)
PermisDemandé(e)
CitationDemandé(e)
Permis de lotissementDemandé(e)
AffectationDemandée
Zone à risque d'inondationNon
Zone inondable délimitéeNon
Zone rivièreNon
.png?format=webp&width=1920&height=auto)





























