Proche Bastogne, superbe terrain de 826 m² en lotissement
À partir de € 89 000
Nouveau
6600 Bastogne(ref. 772)
826 m²
Luc FERRIÈREinfo@immo-far.be
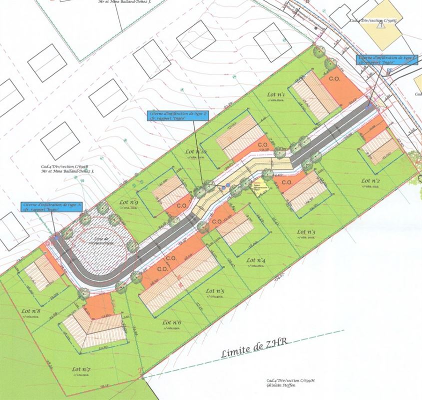
Idéalement situé au cœur du charmant et recherché hameau de Hardigny, dans un environnement calme, verdoyant et recherché, Immo-Far vous présente un superbe terrain à bâtir de 8 ares 26 centiares (826 m²) situé dans un nouveau lotissement résidentiel.
Ce terrain, d’une largeur à rue de 24 mètres et d’une profondeur d’environ 35 mètres, bénéficie d’une excellente orientation Sud-Est, idéale pour profiter d’une belle luminosité tout au long de la journée. Vous serez séduit par son cadre paisible et convivial, parfait pour les familles ou toute personne recherchant la tranquillité.
Situé à seulement quelques minutes du centre de Bastogne et à proximité du Grand-Duché de Luxembourg, cet emplacement combine le charme de la campagne et l’accès facile aux commodités : écoles, commerces, services et grands axes routiers.
Ce terrain est entièrement viabilisé (eau, électricité), libre de constructeur et sans obligation de construction. Il conviendra parfaitement pour la construction de votre future maison unifamiliale contemporaine ou traditionnelle, selon vos envies et besoins.
Cette parcelle représente un investissement serein dans une région dynamique, où la qualité de vie et la croissance du marché local sont au rendez-vous.
Dossier complet et prescriptions urbanistiques disponibles sur simple demande.
Ne tardez pas, une visite s’impose.
Infos et visites : 0497/57.70.18
Informations générales
Adresse6600 Bastogne
Surface du terrain826 m²
Largeur de façade24 m
Largeur du terrain24 m
DisponibilitéÀ l'acte
Orientation facade arrièreSud
Financier
PrixÀ partir de € 89 000
Revenu cadastral€ 6
Coûts totaux€ 1.852,46
Total€ 90.852,46
Confort
Construction
Construction4 façades
Type de constructionTraditionnel
Informations urbanistiques
Droit de préemptionNon
PermisPas applicable
CitationPas applicable
Permis de lotissementOui
AffectationZone d'habitat
Zone à risque d'inondationNon
Zone inondable délimitéeNon
Zone rivièreNon

Luc FERRIÈREinfo@immo-far.be
.png?format=webp&width=1920&height=auto)




























