Spacieuse maison villageoise 4 chambres avec jardin - PEB B
À partir de € 217 000
Nouveau
4
1
1
206 m²
216 m²
Luc FERRIÈREinfo@immo-far.be
FAIRE OFFRE A PARTIR DE 217.00 € SOUS RESERVE DE L'ACCEPTATION DES PROPRETAIRES
Idéalement située dans le charmant village de Merny, à 2 km du centre de Paliseul et de toutes ses commodités, Immo-Far vous présente une splendide et spacieuse maison villageoise de 262 m² rénovée de 2019 à 2025 implantée sur une parcelle de 2 ares 16 centiares.
Cet ancien presbytère daté de 1850 converti en maison d'habitation vous séduira par ses très beaux volumes, ses belle hauteurs sous plafonds, sa praticité ainsi que sa très bonne performance énergétique.
Cette habitation tout confort est composée au rez d'un spacieux hall d'accueil, d'une cuisine ouverte sur une grande et lumineuse pièce de séjour, une buanderie, un wc indépendant.
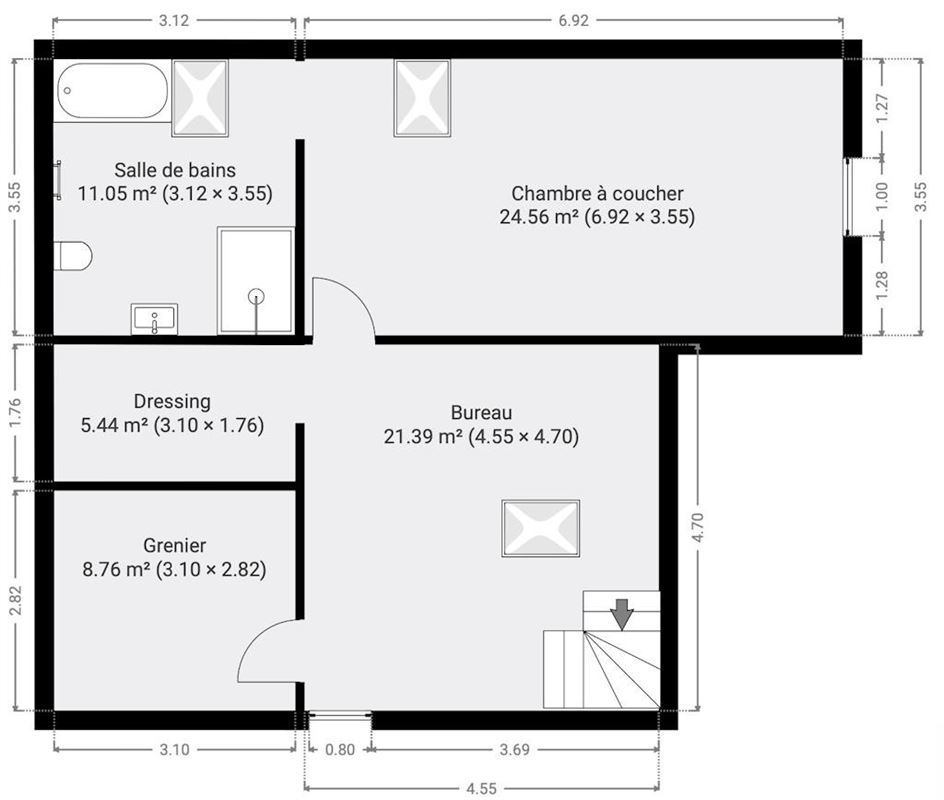
Au premier étage, un hall de nuit dessert 3 belles chambres ainsi qu'une salle-de-douches flambant neuve.
Le second étage est dédié à une splendide suite parentale composée d'un chambre avec salle-de-bains en suite, un bureau, un dressing, un grenier de rangement.
Des belles caves de rangement sont présentes au sous-sol, à l'extérieur, une belle parcelle de terrain avec une terrasse.
D'un point de vue technique, ce bien est équipé de 24 panneaux photovoltaïques, de châssis double vitrage, d'un boiler thermodynamique, d'une installation électrique rendue conforme pour l'acte authentique.
Quelques petits travaux de finition sont à prévoir ainsi que le remplacement d'un escalier.
Une visite s'impose, ne tardez pas.
Infos et visites : 0486/09 15 89 (7j/7j)
Informations générales
AdresseGrand-Rue 99, 6850 Paliseul
Nombre de chambres4
Nombre de salles de bain1
Nombre de salles de douche1
Nombre de toilettes3
Surface habitable206 m²
Surface du terrain216 m²
Largeur de façade9 m
Largeur du terrain11 m
DisponibilitéÀ l'acte
Performance énergétique
Label PEB
Valeur PEB154 kWh/m²/an
Référence PEB2025052209098
Financier
PrixÀ partir de € 217 000
Revenu cadastral€ 548
Coûts totaux€ 2.735,28
Total€ 219.735,28
Confort
ChauffagePoêle à granulés
CuisineSemi-équipée
VitrageDouble vitrage
ChâssisPVC
Construction
Construction3 façades
Type de constructionTraditionnel
Année de construction1850
ÉtatExcellent état
Matériau de toitureArdoises naturelles
Informations urbanistiques
Droit de préemptionDemandé(e)
PermisDemandé(e)
CitationDemandé(e)
Permis de lotissementDemandé(e)
AffectationDemandée
.png?format=webp&width=1920&height=auto)




































