Splendide et authentique fermette ardennaise sur + de 22 a
À partir de € 200 000
Option
4
2
160 m²
2223 m²
Luc FERRIÈREinfo@immo-far.be
! COUP DE COEUR ASSURE !
Idéalement située dans le charmant village de Ourt, à 5 minutes de Libramont-Chevigny et de toutes ses commodités, Immo-Far vous présente une authentique fermette ardennaise en très bon état structurel sur une parcelle de 22 ares 23 centiares.
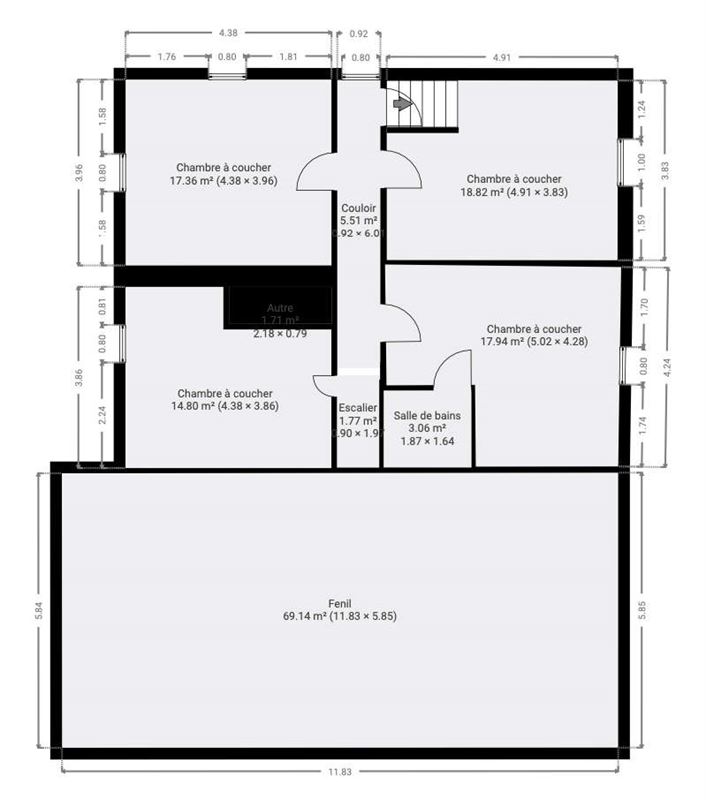
Cette bâtisse comptabilisant 450 m² comprends un corps de logis de 160 m² à rénover composé d'une cuisine avec cheminée à l'ancienne, une salle-à-manger, un salon, une arrière cuisine, une buanderie, 4 chambres, une salle-de-bains ainsi qu'un grenier aménageable de 88 m² avec charpente apparente.
Les dépendances, présentant un énorme potentiel, sont composées d'une étable de 62 m² au sol avec fenil sur poutrains/claveaux et d'une grange de 44 m² au sol.
A l'extérieur, une belle parcelle de terrain bien orientée, une petite annexe en pierre du pays de 24 m².
D'un point de vue technique, ce bien est équipé d'un chauffage central au mazout, d'une toiture en ardoises récente et de châssis double vitrage.
Une visite s'impose, ne tardez pas.
Infos et visites : 0486/09 15 89 (7j/7j)
Informations générales
AdresseLes Colais 3, 6800 Libramont-Chevigny
Nombre de chambres4
Nombre de salles de bain2
Nombre de toilettes3
Surface habitable160 m²
Surface du terrain2223 m²
Largeur de façade25 m
Largeur du terrain34 m
DisponibilitéÀ l'acte
Performance énergétique
Label PEB
Valeur PEB350 kWh/m²/an
Certificat d'électricitéDemandé(e)
Référence PEB20241109005012
Inspection du réservoir de mazoutNon
Financier
PrixÀ partir de € 200 000
Revenu cadastral€ 456
Coûts totaux€ 2.618,03
Total€ 202.618,03
Confort
ChauffageC.C. au mazout
CuisineNon-équipée
VitrageDouble vitrage
ChâssisPVC
ExtérieurAnnexe
Construction
Construction4 façades
Type de constructionTraditionnel
Année de construction1920
ÉtatÀ rénover
Matériau de toitureArdoises naturelles
Informations urbanistiques
Droit de préemptionDemandé(e)
PermisDemandé(e)
CitationDemandé(e)
Permis de lotissementDemandé(e)
AffectationDemandée
.png?format=webp&width=1920&height=auto)





























