Vidéo
Au grand calme, superbe villa ossature bois de 2017 - 3 ch
À partir de € 425.000
Vendu
3
1
133 m²
2358 m²
!!! VENDU !!!
Idéalement située dans un cul-de-sac aux abords du charmant petit village d'Huppaye, Immo-Far vous présente une villa de 2017 en ossature bois de standing de 133 m² habitable mélangeant confort de vie, matériaux de qualité et une excellente performance énergétique, PEB "B", vous séduira par ses vastes et lumineuses pièces de vies ouvertes et agréablement distribuées, ses vues dégagées imprenables sur la campagne et son terrain plein Sud dégagé sans vis-à-vis.
Cette propriété prête à vivre est composée au rez-de-chaussée d’un hall d’accueil avec wc indépendant
desservant l’accès vers un lumineux séjour traversant avec poêle à bois, une salle-à-manger avec accès à la terrasse et jardin, une cuisine semi équipée îlot et coin repas avec accès au jardin, une réserve.
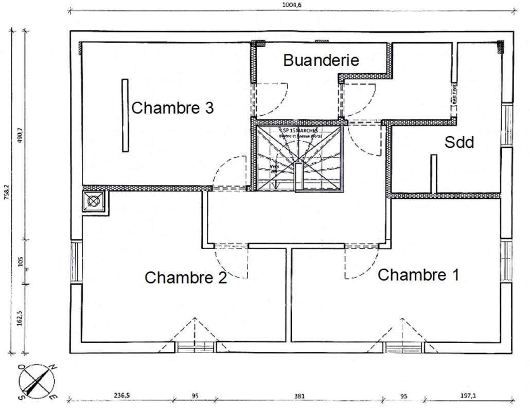
Au premier étage, un hall de nuit dessert 3 belles chambres dont 1 avec salle-de-douches en suite à aménager, une salle-de-douches avec wc monobloc, une buanderie.
A l'extérieur, un porche plancher bois 12 m² bénéficiant d'une borne pour recharge voiture, 4 emplacements de parking, grand jardin.
D'un point de vue technique, cette propriété bien isolée bénéficie d'un certificat électrique conforme et jouit d'une faible consommation en énergie grâce à son équipement de 11 panneaux photovoltaïques, son double vitrage à croisillons.
Vidéo : https://youtu.be/Gdx0eg3TjcI
Infos et visites : 0486/09 15 89 (7j/7j)
Informations générales
AdresseRue du Chemin Vert 22, 1367 Huppaye
Nombre de chambres3
Nombre de salles de douche1
Nombre de toilettes2
Nombre de places de parking externes4
Surface habitable133 m²
Surface du terrain2358 m²
Largeur du terrain22 m
DisponibilitéÀ l'acte
Performance énergétique
Label PEB
Valeur PEB96 kWh/m²/an
Certificat d'électricitéOui, conforme RGIE
Référence PEB2025051205087
Financier
PrixÀ partir de € 425.000
Revenu cadastral€ 1.300
Coûts totaux€ 3.084,17
Total€ 428.084,17
Confort
ChauffagePoêle au bois
CuisineSemi-équipée
VitrageDouble vitrage
ChâssisPVC
IntérieurBuanderie
ExtérieurAbri de jardin, Fosse septique
Construction
Construction4 façades
Type de constructionOssature bois
Année de construction2017
ÉtatExcellent état
Matériau de toitureTuiles
Informations urbanistiques
Droit de préemptionPas applicable
PermisOui
CitationPas applicable
Permis de lotissementPas applicable
AffectationDemandée
Zone à risque d'inondationNon
Zone inondable délimitéeNon
Zone rivièreNon
.png?format=webp&width=1920&height=auto)































